06版赣东网站 | 08版赣东网站 | 09版赣东网站 | ENGLISH

销售热线:0797-5791500
传真号码:0797-5791700
销售服务:18907978600
网  址:www.shakingtable.net
信 箱:admin@shakingtable.net
QQ在线:188550755
  址:江西省石城县工业园区
 
 当前位置:产品中心 > 重力选矿设备 > 隔膜式跳汰机
 
隔膜式跳汰机
产品名称: 隔膜式跳汰机
产品别名: 跳汰机
规格型号: 隔膜式,LTS,典瓦式
推荐等级: ★★★★★
   
   
  产 品 概 况:


  双斗隔膜跳汰机分为左式机和右式跳汰面两种型式。 本跳汰机是固定筛子。适用于选别金属矿石,例如含钨、含金的砂矿,精选锡矿等,既可用于选细粒物料,也可用于选粗的物料,最大给矿粒度为6-8mm,但在选别砂矿的个别情况下,最大粒度为12mm。

 

  产 品 结 构 及 材 质:



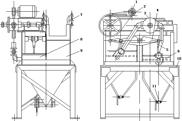
1-电动机; 2-传动部分; 3-分水器; 4-摇臂; 5-连杆; 6-胶隔膜;
7-跳汰室;8-隔膜室; 9-跳汰室; 10-机架; 11-排矿活栓

  LTS300×450双斗隔膜跳汰机结构由:机身、传动装置、分水器、隔膜和活栓等主要部分组成,机体有两个大小的跳机斗,每个隔膜斗用不到底的隔板将其分成跳汰区和隔膜区两部分。跳汰过程是靠橡胶隔膜作上下往复运动所造成介质(水)的鼓动来进行。电动机通过三角皮带带动大皮轮转动,使偏心轴上的连杆上下运动,与此连杆连接的摇臂也上下运动,摇臂上另有二连杆连接橡胶隔膜、从而使隔膜获得上下往复运动,进行跳汰。

  根据被处理矿石的粒度,可以变更连杆的冲次和选取不同的冲程,以便获得最好的跳汰的效果。变更冲次的方法是更换小皮带轮,可有两种冲次:322次/分钟;420次/分钟。选取冲程方法为松开紧定螺钉和螺帽、拉出定位销、转动偏心调整套与偏心轴之间的相对位置,可有11种不同的冲程(0—25.3mm).

  由于工作筛的上面加了一个筛子,故跳汰机可用于处理粒度不均匀的物料。(注:此筛根据订货要求可不供给)入选原矿被送入跳汰室后,由于隔膜的鼓动作用,矿粒在介质中被按比重分层;细而重的矿粒通过人工床颗粒的间隙和筛孔,沉集在跳汰斗的储矿中、上层粗而轻的矿粒(矿物)被介质流冲向筛子末端的排矿口,由于后跳汰室比前跳汰室的位置低50mm,故轻矿粒经过前室尾板溢出而进入后室,再次受到跳汰。根据需要可调节尾板位置的高低,以控制排矿量的大小。

  储放斗中的精矿定期由排矿管排出。

 

  产 品 应 用 范 围:


  
用于选别金、锡、钨、钛、赤铁、铁矿、煤等矿物,特别是在锰矿选矿领域中得到了广泛应用。

  产 品 规 格 及 技 术 参 数:

 

名称规格

室数

筛室
面积
(米²)

给矿
粒度
(毫米)

生产
能力
(吨/时)

冲程
(毫米)

冲次
(次/分)

补加
水量
(吨时)

水压
(公斤/
厘米²)

电动机

重量
(kg)

型号

功率
KW

100×150
隔膜跳汰机

1

0.015

-3

0.018-0.6

-

420

-

1-1.5

Y80L-4

0.55

130

300×450
双室隔膜跳汰机

2

0.27

-12

3-6

0-26

322

2-4

1-1.5

Y90S-4

1.1

745

1000×1000下动型圆锥跳汰机

2

2

1-5

10-25

0-26

200-350

60-80

0.6-2

Y100L-6

1.5

1700

370×360下动式圆锥隔膜跳汰机

2

0.274

6

1-3

5-25

200-250

2-5

-

Y90S-4

1.1

240

工革梯形侧动
隔膜式跳汰机

3

2.7

-3

12.5-37.5

13-21

170-230

60-90

2

Y90S-4

1.1

2000

670×920
跳汰机

2

1.44

4-8

7-10

18-24

240-300

-

-

-

-

-

使用注意事项

1、启动前应检查各部件的螺钉是否拧紧,活栓、斗体不能漏水。

2、各压注油咀处要注意经常加注润滑油脂。

3、先经空车运转正常后,才允许负荷运转。

4、橡胶隔膜处和三角皮带不许有油物沾污。

 

-----------------------------------------------------------------------------------------------------------------
 
 
 
 

网站快速导航:选矿问答重力选矿设备选矿实验设备 | 选矿技术专题知识 | 赣东图库 | 视频中心 | 赣东服务 | 关于我们 | 人力资源 | 联系方式 | 网站地图

地  址:中国江西省石城县工业园区  邮编:342700 [位置示意图]
销售热线:0797-5791500  传真:0797-5791700
版权所有:江西省石城县赣东矿山机械制造厂
电子信箱:admin@shakingtable.net
赣ICP备06002124号